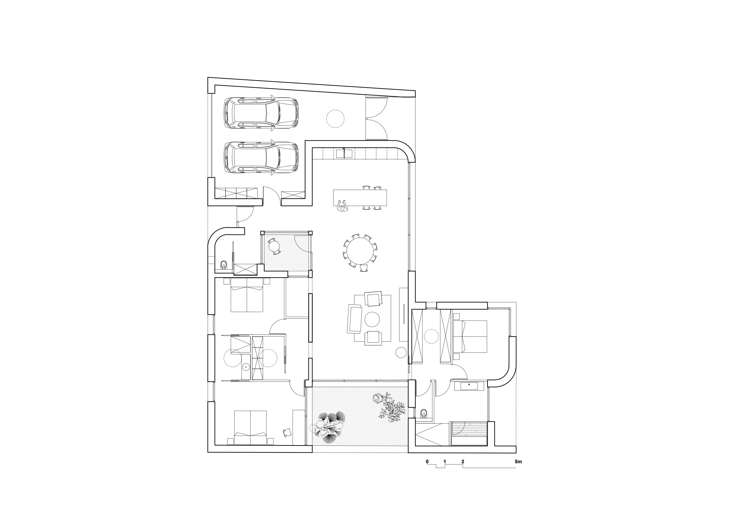
lieu : draveil (91)
client : privé
année : 2021
surface : 170m2
équipe : guillaume dumay, théophile aureau
images : alexandre besson
bet thermique : mir bet

dessin
images