gdad-2103 : la maison au rosier
lieu : massy (91)
client : privé
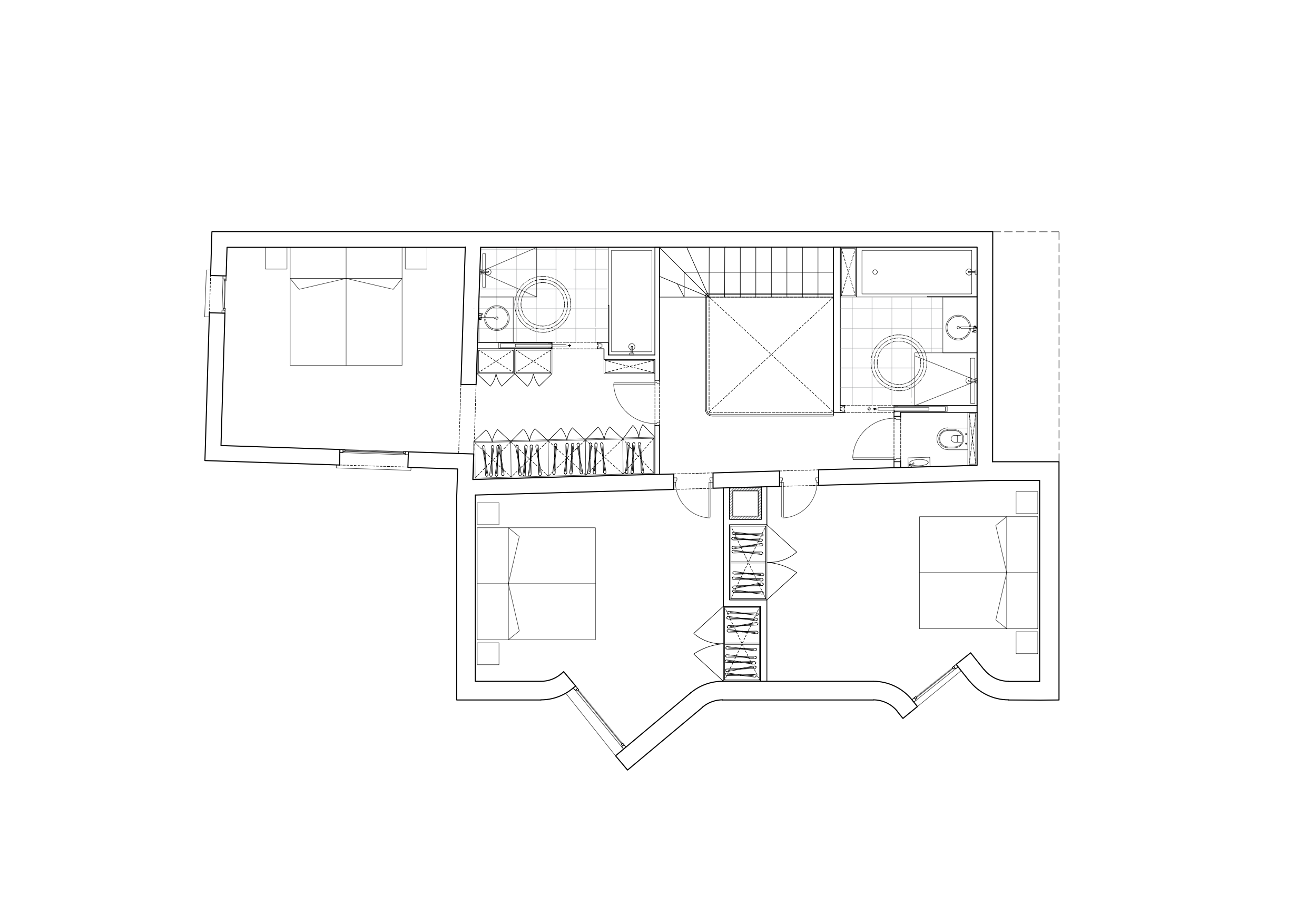
année : 2021
surface : 150m2
équipe : guillaume dumay, matilda pushkina, youssef chehade
images : matilda pushkina
bet thermique : mir bet
bet structure : best international
crédits photos : stéphane vu
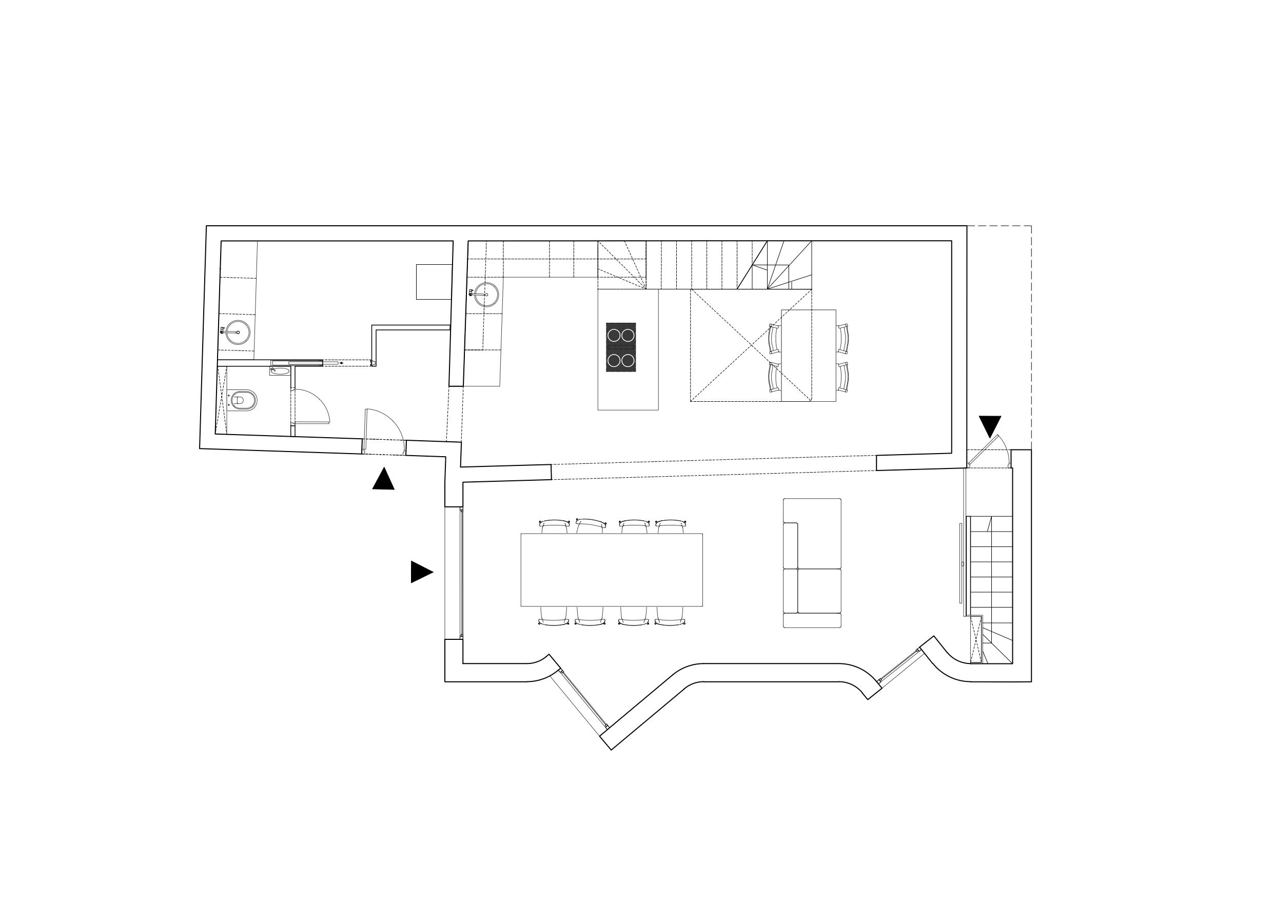
La maison existante était là avant toute l’émergence d’immeubles en r+3/4 qui l’entoure aujourd’hui. Elle était seule au milieu des champs. Le projet de rénovation complète et d’extension de cette maison devait faire honneur à ses origines, à sa résistance…
Sur la parcelle se trouve un rosier, presque plus ancien que la maison et l’un des derniers de son espèce… Lui aussi résiste. Le projet s’inspire naturellement de la nature.
La façade principale reprend les codes de la tige de rosier et de ses épines. Les ouvertures sont ainsi orientées vers l’axe routier.
L’ensemble produit un objet atypique, qui tente peu ou prou, de reprendre sa notoriété.
La maison existante était là avant toute l’émergence d’immeubles en r+3/4 qui l’entoure aujourd’hui. Elle était seule au milieu des champs. Le projet de rénovation complète et d’extension de cette maison devait faire honneur à ses origines, à sa résistance…
Sur la parcelle se trouve un rosier, presque plus ancien que la maison et l’un des derniers de son espèce… Lui aussi résiste. Le projet s’inspire naturellement de la nature.
La façade principale reprend les codes de la tige de rosier et de ses épines. Les ouvertures sont ainsi orientées vers l’axe routier.
L’ensemble produit un objet atypique, qui tente peu ou prou, de reprendre sa notoriété.