lieu : garches (92)
client : privé
année : 2021
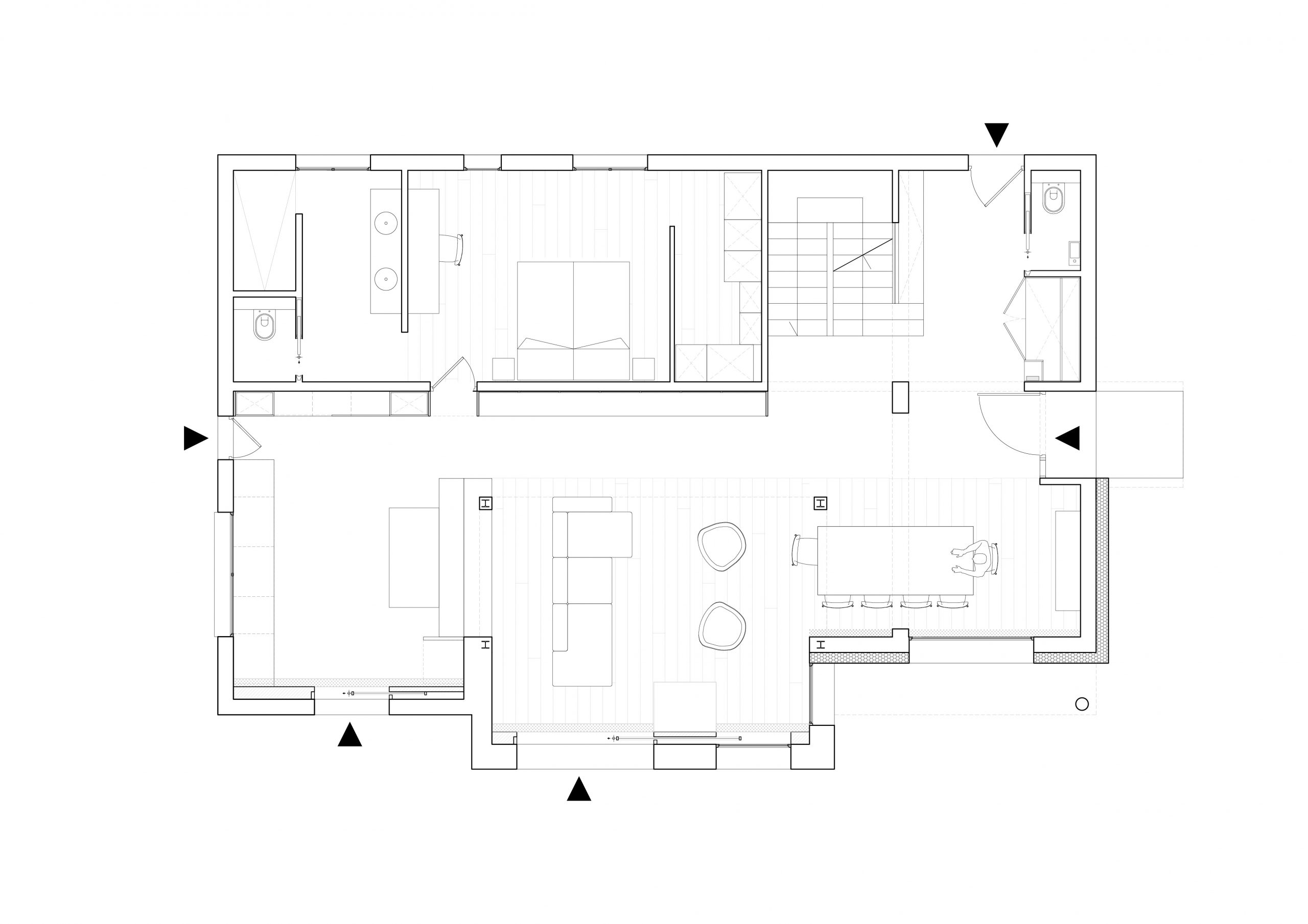
surface : 175m2
catégorie : rénovation totale + extension
équipe : guillaume dumay, marie-adeline aureau, matilda pushkina, youssef chehade
bet structure : orhel
entreprises : orhel, crevadan design
La maison existante était là avant toute l’émergence d’immeubles en r+3/4 qui l’entoure aujourd’hui. Elle était seule au milieu des champs. Le projet de rénovation complète et d’extension de cette maison devait faire honneur à ses origines, à sa résistance…
Sur la parcelle se trouve un rosier, presque plus ancien que la maison et l’un des derniers de son espèce… Lui aussi résiste. Le projet s’inspire naturellement de la nature.
La façade principale reprend les codes de la tige de rosier et de ses épines. Les ouvertures sont ainsi orientées vers l’axe routier.
L’ensemble produit un objet atypique, qui tente peu ou prou, de reprendre sa notoriété.